Docteur en droit | Ancien bâtonnier | Ancien membre du Conseil national des barreaux |Avocat
Spécialiste en droit bancaire et boursier | Spécialiste en droit des garanties, des sûretés et des mesures d’exécution











VENTE Aux enchères publiques
Au plus offrant et dernier enchérisseur
A l’audience publique des criées du Juge de l’Exécution du Tribunal Judiciaire de VALENCE, siégeant dite ville, au Palais de Justice, 2 Place Simone Veil – 26000 VALENCE
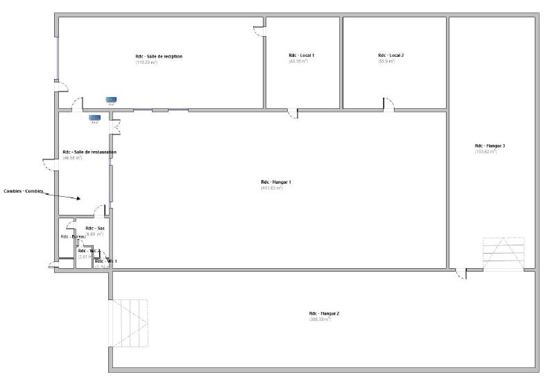
SUR LA COMMUNE DE BOURG DE PEAGE (DRÔME)
235 ALLÉE DU DAUPHINÉ
UN BÂTIMENT À USAGE D’ENTREPÔT ET DE BUREAUX
AVEC TERRAIN ATTENANT
L’ADJUDICATION AURA LIEU LE JEUDI 02 AVRIL 2026 À 10 H
A la requête de la BANQUE POPULAIRE AUVERGNE RHONE ALPES, Société anonyme coopérative de banque populaire à capital variable, régie par les articles L 512.2 et suivants du Code Monétaire et Financier et l’ensemble des textes relatifs aux Banques Populaires et aux Etablissements de Crédit, immatriculée au registre du Commerce et des Sociétés de LYON (Rhône) sous le numéro 605 520 071, dont le siège social est 4, boulevard Eugène Deruelle 69003 LYON, agissant poursuites
et diligences de son représentant légal domicilié es qualité audit siège.
DESIGNATION :
Sur la Commune de BOURG DE PEAGE (Drôme)
235 Allée du Dauphiné
Un bâtiment à usage d’entrepôt et de bureaux avec terrain attenant
Figurant au cadastre SECTION ZB 696 pour une contenance de 00ha 19a 73ca.
Le bien forme un lot du lotissement dénommé « Lotissement industriel du quartier Georgeonnes »
MISE A PRIX : 195 000,00 € (CENT QUATRE VINGT QUINZE MILLE EUROS)
Outre les charges et conditions indiquées au cahier des conditions de vente dressé par Maître Dominique FLEURIOT déposé au Greffe du Juge de l’Exécution du Tribunal Judiciaire de VALENCE. Les enchères ne pourront être portées que par un avocat inscrit au barreau de la Drôme.
Occupation : Le bien était occupé au moment de l’établissement du procès-verbal de description
Consignation :
Toute personne intéressée devra remettre au conseil de son choix un chèque de banque établi à l’ordre de la CARPA représentant 10 % du montant de la mise à prix ou une caution bancaire, le montant de cette garantie ne pouvant être inférieur à 3 000,00 €.
Visite : La visite aura lieu le mardi 24 mars 2026 de 10 h à 11 h par Maître GRÉE Commissaire de justice – 25 rue Frédéric CHOPIN à 26000 VALENCE